
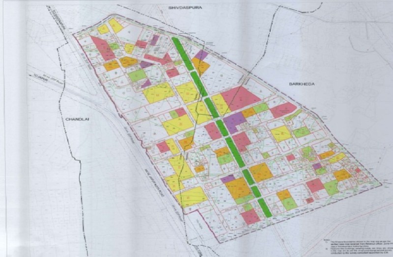
कॉलोनियों की सड़कें 40 फीट की और मुख्य सड़कें होंगी 200 फीट चौड़ी, खातेदारों को घर के पास मिलेंगी मूलभूत सुविधाएं
प्रदेश की पहली लैंड पूलिंग स्कीम का जेडीए ने ड्राफ्ट प्लान जारी कर दिया है। जेडीए टोंक रोड स्थित शिवदासपुरा, चंदलाई और बरखेड़ा में यह स्कीम लेकर आ रहा है। जो प्लान जेडीए ने तैयार किया है, उसके मुताबिक कॉलोनियों की सड़कें कम से कम 40 फीट और मुख्य सड़कें 200 फीट चौड़ी होंगी।
ड्राफ्ट प्लान जारी करने के बाद जेडीए अगले 30 दिन तक प्रभावित लोगों से आपत्ति और सुझाव मांगेगा। सुझावों पर अमल और आपत्तियों के निस्तारण के बाद यह योजना मूर्तरूप लेगी। ड्राफ्ट पर गौर करें तो उसमेें लिखा है कि काश्तकारों को घर से 10 से 15 मिनट की वॉकिंग डिस्टेंस पर ही पार्क, गार्डन, स्कूल, डिस्पेंसरी जैसी मूलभूत सुविधाएं मिलेंगी।
दरअसल, लम्बे समय से यह योजना अधर में है। पहली बार बीते दिनों जेडीए ने इस योजना को लेकर काश्तकारों से बातचीत की है और उनके सुझावों को शामिल किया है।
कितनी जमीन किसमें जाएंगी
| फीसदी | |
| सड़क | 23.08 |
| सुविधाएं | 15.27 |
| बिक्री के लिए भूमि | 15.0 |
| शेष भूखंडों के लिए क्षेत्र | 46.60 |
सुविधाएं विकसित करने में खर्च होंगे 150 करोड़|
-लैंड पूलिंग योजना में सुविधाओं को विकसित करने में 150 करोड़ रुपए से अधिक खर्च होंगे। सर्वाधिक 41.37 करोड़ रुपए सडक़ों पर खर्च होंगे। इसके अलावा फुटपाथ विकसित करने में 20.66 करोड़ और पौधारोपण पर 3.39 करोड़ रुपए खर्च होंगे। इसके अलावा स्ट्रीट लाइटें लगाने पर भी छह करोड़ रुपए खर्च होंगे।
-जलापूर्ति और ड्रेनेज सिस्टम विकसित करने में 60 करोड़ रुपए से अधिक खर्च होने का अनुमान है। इसमें बोरवेल से लेकर एसटीपी, वाटर रीचार्ज स्ट्रक्चर विकसित किए जाएंगे।
खास-खास
-163.5 हैक्टेयर भूमि पर विकसित करने का है इस योजना का प्लान
-55 फीसदी भूमि देने का प्रावधान रखा गया है खातेदारों को मुआवजे के तौर पर
-10 फीसदी भूमि जेडीए खुद के उपयोग के लिए योजना में रखेगा रिजर्व
Published on:
25 Feb 2024 01:27 pm
बड़ी खबरें
View Allजयपुर
राजस्थान न्यूज़
ट्रेंडिंग
